Neubau-Eigentumswohnungen für gehobene Ansprüche mit KFW 40 QNG Förderkredit
-
Diese großzügige 4-Zimmer-Wohnung im Erdgeschoss erstreckt sich über 95,05 m² und bietet einen offenen Wohn-/Essbereich mit integrierter Küche, ein Schlafzimmer, ein Arbeitszimmer und ein Gästezimmer. Das moderne Bad ist mit einer Dusche ausgestattet; zusätzlich gibt es ein separates WC. Der lichtdurchflutete Wohn-/Ess-/Kochbereich öffnet sich zur sonnigen Süd-/Westterrasse mit angrenzendem Gartenanteil mit Sondernutzungsrecht, der sich großzügig um die Wohnung herum erstreckt ein echtes Highlight dieser Wohnung.
Diese modernen Eigentumswohnungen mit Aufzuganlage zeichnen sich durch ihre exklusive Lage und ihre zeitlose Architektur mit klaren Linien aus.
Das Gebäude ist inspiriert an den Häusern Fürstenallee 8, Fürstenallee 70, sowie Rochusweg 58 der Stadtluft Immobilien GmbH.
Die solide und somit wertbeständige Bauweise wird durch ausgewählte, regionale Handwerksfirmen erstellt, die Auswahl hochwertigster Materialien garantiert einen hohen Grad an Qualität und Nachhaltigkeit.
Das Gebäude wird als Effizienzhaus-Stufe KFW 40 mit QNG Zertifikat (Qualitätssigel-Nachhaltiges-Gebäude) erstellt.
Nutzen Sie die Möglichkeit mit dem Förderprogramm: Klimafreundlicher Neubau mit QNG Zertifikat, der
staatlichen Förderbank KFW Ihre Wohneinheit zu finanzieren.
Dieses Programm hat die Programmnummer KfW 297/298 und bietet Ihnen Förderkredite
über 150.000,- EUR zu sehr günstigen Konditionen.
Es ermöglicht Kapitalanlegern zusätzliche steuerliche Abschreibungen geltend zu machen. Die Regelung zielt
darauf ab, den Bau von energieeffizienten und nachhaltigen Wohngebäuden zu fördern.
Das Gebäude erhält eine Luft-Wärmepumpe mit einer Komfort-Lüftungsanlage mit Wärmerückgewinnung für ein optimales Raumklima und eine effiziente Wohnraumlüftung. Ergänzt wird das nachhaltige Energiekonzept durch eine Photovoltaikanlage zur umweltfreundlichen Stromerzeugung. Die hochwertigen Fensterelemente erhalten eine einbruchhemmende Dreifachverglasung sowie elektrisch angetriebene Raffstores bzw. Rollläden. Sämtliche Wohnungen sind barrierefrei erreichbar, ein Personenaufzug mit vier Haltestellen bringt Sie von dem Kellergeschoss direkt auf Ihre Wohnetage.
Wie beim Exterieur orientiert sich das Bauvorhaben auch beim Interieur an zeitloser Gestaltung.
Den Grundrissen wurde bei der Planung ein hoher Stellenwert eingeräumt und sie können auf Ihre Bedürfnisse angepasst werden.
Neben dem Gebäude befindet sich ein Parkplatz mit Carports von denen jeder Wohnung ein eigener Stellplatz zugeordnet ist
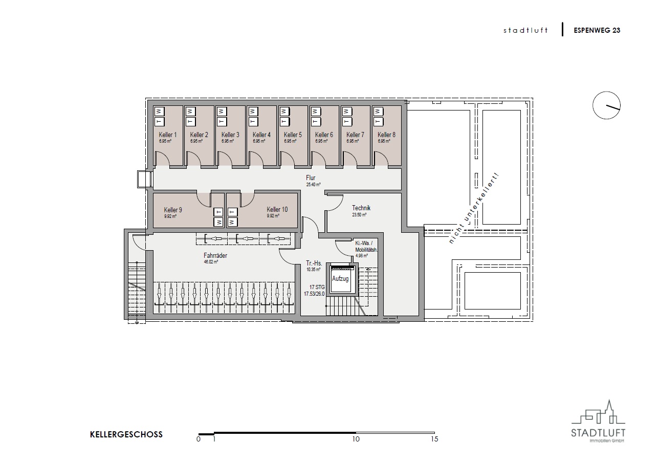
Im Kellergeschoss befinden sich die mechanisch belüfteten Abstellräume – zugehörig zu jeder Wohneinheit mit Podestflächen sowie Sanitäranschlüssen für Waschmaschine und Kondensattrockner (bei Bedarf können die Haushaltsgeräte auch in der Wohnung vorgerüstet werden).
Ein Abstellbereich für Fahrräder sowie Kinderwagen befinden sich ebenfalls im Kellergeschoss.
Der Technikbereich ist zur Aufnahme des Heizsystems, der Hausanschlüsse und anderer Haustechnik ausgelegt.
Die barrierefreie Aufzuganlage erschließt alle drei Geschosse. -
Flächen
- Wohnfläche: 95,05 m²
- Wohneinheiten: 10
- Zimmer insgesamt: 4
- Schlafzimmer: 1
- Badezimmer: 1
- Etagen: 2
- Etage: EG
- Stellplätze: 1
- Stellplatzart: Carport, Freiplatz
- Carport-Stellplätze: 1
- Außenstellplätze: 1
- Terrassen: 1
Zustand & Erschließung
- Baujahr: 2025
- Zustand: Erstbezug
- Alter: Neubau
- Keller: voll unterkellert
- Energietyp: Neubaustandard, KFW40
Sonstiges
Dieses Projekt entsteht in Zusammenarbeit mit der Stadtluft Immobilien GmbH, Paderborn.
Der Baubeginn ist im Sommer 2025, bezugsfertig sind die Wohnungen Anfang 2027.
Es fällt keine Maklergebühr an, Sie kaufen direkt vom Ersteller!
Gerne möchten wir Sie zu einer Tasse Kaffee zu uns ins Büro an die Detmolder Str. 71 einladen, um Ihnen weitere Informationen zu geben, oder vereinbaren Sie mit uns Ihren unverbindlichen Beratungs- und Besichtigungstermin, auch per Zoom, Face-Time oder WhatsApp.
Sie erreichen uns unter
Georg Knaup: Tel. Nr.: 05251 – 20 77 810, Mobil: 0171-2122320
Andreas Scheurell: Tel. Nr.: 05251 – 20 77 818, Mobil: 01702307555- Immobilie ist verfügbar ab: 01.01.2027
-
Die hochwertige Ausstattung beinhaltet:
– KfW Klimafreundlicher Neubau mit QNG Zertifikat ermöglicht einen Förderkredit bis zu 150.000,- EUR je Wohneinheit zu zinsgünstigen Konditionen
– Sonderabschreibung für Kapitalanleger
– Luft-Wasser-Wärmepumpe
– Komfort-Lüftungsanlage mit Wärmerückgewinnung
– Photovoltaikanlage
– Fußbodenheizung mit separater Regelung für jeden Raum
– bezugsfertig inkl. Maler- und Tapezierarbeiten
– Bodenbeläge in Keramik und Echtholzparkett nach Wahl
– 3-Fach verglaste Fenster
– hochwertige Terrassen- / Balkonbeläge
– elektrische Raffstores und Rollläden
– Sanitärausstattung von führenden Herstellern
– bodengleiche Duschen mit Regenbrause und Handdusche
– Handtuchheizkörper in den Bädern
– adäquate Sicherheit durch Videosprechanlage, Schließsystem mit Mehrfachverriegelung an den Haus- und Wohnungstüren
– Aufzug
– Kellerräume und Fahrradraum
– barrierefrei
Die individuelle Planung der Elektro-, TV- und Netzwerkanschlüsse sowie Boden- und Wandfliesen, Parkettbeläge ist möglich.
Zu jeder Wohnung gehört für zusätzliche 16.000,- EUR ein Carport.
- Art der Ausstattung: gehoben
- Heizungsart: Zentralheizung
- Befeuerung: Elektro, Luft-Wärmepumpe
- Bodenbelag: Fliesen, Stein, Parkett
- Badausstattung: Dusche, Fenster
-
- Primärenergieträger: Elektro, Luft-Wärmepumpe
- Energieausweis-Jahrgang: nicht erforderlich
-
ESPENWEG 23
Nördlich vom Zentrum Paderborns, in einem gewachsenen, ruhigen Wohngebiet, befindet sich diese hervorragende Wohnlage.
Die “Paderauen“, sowie die “Fischteiche“ mit reizvoller Naturlandschaft befinden sich nur wenige Gehminuten entfernt.
Fuß- und Fahrradwege sorgen für eine direkte Anbindung zur Paderborner Innenstadt oder auch zum nahe gelegenen Erholungsgebiet Padersee.
Kindergärten, Grund- und weiterführende Schulen sind in der unmittelbaren Umgebung vorhanden.Dieses exklusive 10 – Parteien-Haus zeichnet sich neben seiner hochwertigen Ausstattung durch die bevorzugte ruhige Wohnlage aus.
-
- Kaufpreis: 473.900 €
- Stellplatzkaufpreis (Carport): 16.000 €
- Außenstellplatzkaufpreis: 16.000 €


















