KFW 40 QNG: Erdgeschosswohnung mit Garten an den Paderwiesen
-
Willkommen im Haus R77 einem Inbegriff für modernes Wohnen in einer grünen, idyllischen Lage mitten in der Paderstadt. Nur 770 Meter vom Paderborner Dom entfernt, verbindet dieses elegante Gebäude klare Linien und zeitgemäße Wohnkonzepte, die höchsten Ansprüchen gerecht werden.
Besondere Highlights sind die umweltfreundliche Wärmepumpen-Heizung, die sowohl die Umwelt als auch Ihren Geldbeutel schont. Die Lage bietet fußläufige Erreichbarkeit aller wichtigen Geschäfte, der Paderborner Innenstadt, sowie Kindergärten, Grund- und weiterführenden Schulen.
Kultur- und Freizeitangebote wie die Paderhalle, Maspernhalle sowie Hallen- und Freibäder sind in wenigen Minuten erreichbar.
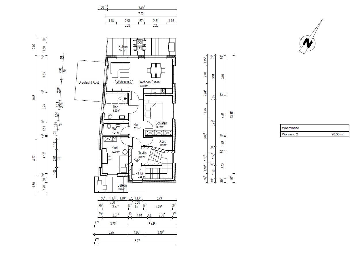
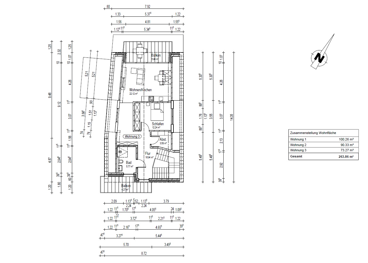
Das Haus umfasst 3 komfortable Wohnungen mit Wohnflächen von 73 und 100 Quadratmetern zu denen jeweils ein Carport und einen Abstellschuppen im Außenbereich
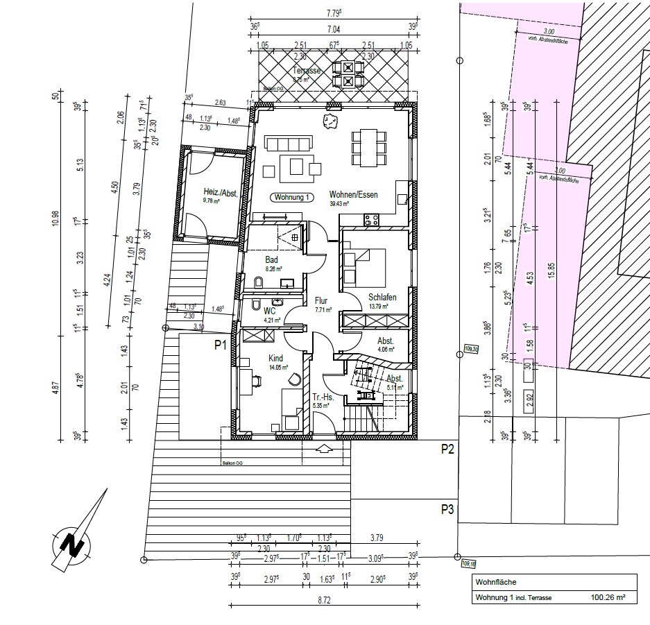
Diese exklusive Erdgeschosswohnung besticht durch ihren großzügigen Wohn-Essbereich mit einem wunderschönen Blick in den eigenen kleinen Garten, der Ihnen ein Höchstmaß an Privatsphäre bietet. Die Wohnfläche von 100 Quadratmetern verteilt sich außerdem auf ein ruhiges Schlafzimmer, ein flexibles Gästezimmer (ideal auch als Büro nutzbar) und ein stilvolles Badezimmer.
Zusätzlich verfügt die Wohnung über ein Gäste-WC, einen praktischen Abstellraum sowie einen zentralen Flur, der die verschiedenen Bereiche der Wohnung verbindet.
Zur Wohnung gehört ein Carport für 20.000,- EUR
Das Haus wird nach KFW 40 QNG Standard gebaut. Dadurch sind niedrige Nebenkosten und 20% Sonderabschreibungen in den ersten 4 Jahren für Kapitalanleger möglich.
Bitte beachten Sie, dass alle Angaben in diesem Exposé zur Orientierung dienen. Einzelne Merkmale können bei Erwerb vor Fertigstellung nach Rücksprache noch angepasst werden. -
Flächen
- Wohnfläche: 100,26 m²
- Wohneinheiten: 3
- Zimmer insgesamt: 3
- Schlafzimmer: 2
- Badezimmer: 2
- Separate WCs: 1
- Etagen: 2
- Etage: EG
- Stellplatzart: Carport
- Carport-Stellplätze: 1
- Terrassen: 1
Zustand & Erschließung
- Baujahr: 2025
- Zustand: Erstbezug
- Alter: Neubau
- Energietyp: KFW40
Sonstiges
Es fällt keine Maklergebühr an, Sie kaufen direkt vom Ersteller!
Gerne möchten wir Sie zu einer Tasse Kaffee zu uns ins Büro an die Detmolder Str. 71 einladen, um Ihnen weitere Informationen zu geben, oder vereinbaren Sie mit uns Ihren unverbindlichen Beratungs- und Besichtigungstermin, auch per Zoom, Face-Time oder WhatsApp.
Sie erreichen uns unter der Tel. Nr.: 05251 – 20 77 810, Mobil: 0171-2122320
Ihr Georg Knaup- Immobilie ist verfügbar ab: 01.01.2027
-
– Luftwärmepumpe
– Bodenbelag innen (nach Wahl) Eichenparkett ultramatt
– Großformatfliesen 60x120cm schiefergrau
– Bodenbelag außen Hochwertige Terrassen- / Balkonbeläge
– Fenster 3-Fach verglaste, überwiegend bodentiefe Fenster
– Elektrische Rollläden
– Bodengleiche Duschen mit Regenbrause und Handdusche
– Hochwertige Sanitärausstattung von führenden Herstellern
– Sicherheit Moderne und sichere Zugangskontrolle durch Videosprechanlage
– Schließsystem mit Mehrfachverriegelung an den Haus- und Wohnungstüren
– Energieeffizienz KFW 40 QNG
Zur Wohnung gehört ein Carport für 20.000,- EUR
- Art der Ausstattung: gehoben
- Heizungsart: Zentralheizung, Fußbodenheizung
- Befeuerung: Luft-Wärmepumpe
- Bodenbelag: Fliesen, Parkett
- Badausstattung: Dusche, Fenster
-
- Primärenergieträger: Luft-Wärmepumpe
- Energieausweis-Jahrgang: nicht benötigt
-
Der Rolandsweg 77 liegt zentral in der Kernstadt von Paderborn und vereint die Vorteile städtischen Komforts mit einer einmaligen Lage direkt an den idyllischen Paderwiesen. Diese einzigartige Umgebung macht die Adresse zu einem idealen Wohnort für alle, die eine hohe Lebensqualität suchen. Die Paderwiesen, eines der schönsten Naherholungsgebiete der Stadt, laden zu ausgedehnten Spaziergängen entlang der Paderquellen ein, die mit ihrem klaren, sprudelnden Wasser und ihrer natürlichen Schönheit begeistern.
Die Wiesen bieten darüber hinaus zahlreiche Möglichkeiten für sportliche Betätigung wie Joggen, Yoga unter freiem Himmel oder Mannschaftssportarten, während die ruhige Natur mit Vogelgezwitscher, schattenspendenden Bäumen und dem beruhigenden Plätschern der Pader eine perfekte Kulisse für Erholung und Entspannung schafft.
Gleichzeitig überzeugt der Rolandsweg 77 durch eine ausgezeichnete Infrastruktur. Die Nähe zur Bundesstraße B1 und ein gut ausgebautes Busnetz garantieren eine schnelle und komfortable Anbindung an alle Teile der Stadt. Einkaufsmöglichkeiten, darunter Supermärkte und kleinere Geschäfte, befinden sich in unmittelbarer Nähe und decken den täglichen Bedarf.
Die Innenstadt ist fußläufig in 10 Minuten erreichbar. Auch für Familien bietet die Umgebung alles, was das Leben angenehm macht, mit einer Vielzahl von Kindergärten, Schulen und Freizeitmöglichkeiten.Diese ideale Kombination aus urbanem Komfort, naturnaher Erholung und vielfältigen Freizeitmöglichkeiten macht den Rolandsweg 77 zu einer äußerst attraktiven Wohnadresse in Paderborn.
-
- Kaufpreis: 499.000 €








