Südstadt: Neubau OG Eigentumswohnung mit Aufzug mit QNG Zertifikat und Förderkredit
-
Diese 5 Neubau-Eigentumswohnungen in der Größe von 41 m² – 83 m² Wohnfläche werden als Effizienzhaus-Stufe KFW 40 EE mit QNG Zertifikat erstellt.
Nutzen Sie die Möglichkeit mit dem Förderprogramm: Klimafreundlicher Neubau, der staatlichen Förderbank KFW Ihre Wohneinheit zu finanzieren.
Dieses Programm hat die Programmnummer KfW 297/298 und bietet Ihnen Förderkredite über 150.000,- EUR zu sehr günstigen Konditionen.
Kapitalanleger profitieren von der neuen Sonderabschreibung.
Diese hochwertigen, komfortablen und massiv gebauten Eigentumswohnungen werden in ansprechender und hochwertiger Ausstattung mit Aufzuganlage, Malerarbeiten und Bodenbelägen nach Ihrer Auswahl bezugsfertig erstellt.
Die Wohnungen bieten Ihnen die besten Voraussetzungen nach Ihren individuellen Bedürfnissen wohnen zu können. Ob Eigennutzer oder Kapitalanleger, profitieren Sie von den werthaltigen Nutzungsmöglichkeiten.
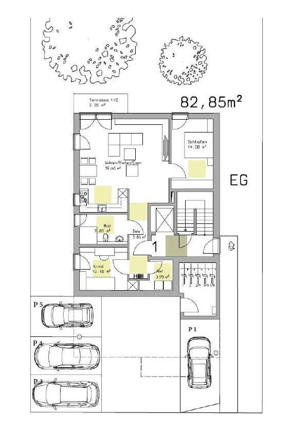
Zu der Wohnung Nr. 1 im Erdgeschoss gehört eine große Terrasse mit alleiniger Gartennutzung um die Wohnung herum,
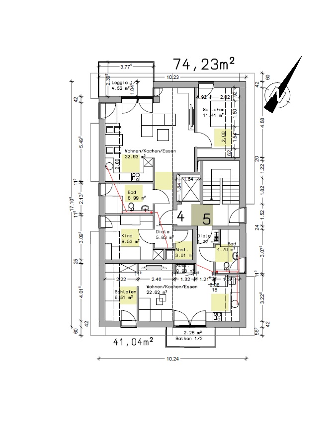
die Wohnungen in den oberen Geschossen sind durch den Aufzug barrierefrei zu erreichen und erhalten je einen schönen Balkon.
Ein PKW-Außen-Stellplatz für zusätzlich 7.500,-EUR rundet dieses tolle Angebot ab. -
Flächen
- Wohnfläche: 74,23 m²
- Wohneinheiten: 5
- Zimmer insgesamt: 3
- Schlafzimmer: 1
- Badezimmer: 1
- Etagen: 2
- Etage: 2
- Stellplätze: 1
- Stellplatzart: Freiplatz
- Außenstellplätze: 1
- Loggien: 1
Zustand & Erschließung
- Baujahr: 2025
- Zustand: Erstbezug
- Alter: Neubau
- Energietyp: Niedrigenergiehaus, KFW40
Sonstiges
Das Angebot gefällt Ihnen ?
Schreiben Sie uns über den Kontakt-Button des jeweiligen Internetportales, wir übersenden Ihnen ein Exposé.
Es fällt keine Maklergebühr an, Sie kaufen direkt vom Ersteller !
Haben Sie bereits eine Finanzierungsbestätigung Ihrer Bank?
Auch hier helfen wir Ihnen gerne weiter und vermitteln Ihnen ein Beratungsgespräch mit einem Bank unabhängigen Finanzierungsexperten, unverbindlich und kostenlos.
Gerne möchte ich Sie zu einer Tasse Kaffee zu uns ins Büro an die Detmolder Str. 71 einladen, um Ihnen weitere Informationen zu geben, oder vereinbaren Sie mit mir Ihren unverbindlichen Beratungs- und Besichtigungstermin .
Sie erreichen uns:
Georg Knaup: 05251 – 20 778 10 und Mobil: 0171 21 22 320
weitere Angebote unter www.Immopartner-PB.de
Sonstiges:
Alle Angaben ohne Gewähr !
Der Makler haftet nicht für Tipp- oder Datenübermittlungsfehler.
Vertragsgrundlage ist ausschließlich der Notarielle Kaufvertag.- Immobilie ist verfügbar ab: 31.01.2026
-
Vorteile die überzeugen:
heller, großzügiger Grundriss
moderne Aufzugsanlage bis auf die Wohnetage
niedrige Energiekosten
stadtnahe Wohnlage
großer Balkon / Terrasse
sehr gut möblierbare Grundrisse
Fußbodenheizung, jeder Raum einzeln steuerbar
Luftwärmepumpe mit Photovoltaik Anlage
KfW Klimafreundlicher Neubau mit QNG Zertifikat ermöglicht einen Förderkredit bis zu 150.000,- EUR je Wohneinheit zu zinsgünstigen
Konditionen Sonderabschreibung für Kapitalanleger
Bodenbeläge nach Ihrer Wahl
Malerarbeiten
Kunststoff-Fenster mit 3-fach-Verglasung und Wärmeisolierglas
Elektrische Rollläden
bodengleiche Duschen
Sicherheitsglas-Duschkabine
Handtuchheizkörper im Bad
Außenstellplatz (gegen Mehrpreis)
Video-Sprechanlage
keine zus. Maklergebühr
- Art der Ausstattung: gehoben
- Heizungsart: Zentralheizung, Fußbodenheizung
- Befeuerung: Luft-Wärmepumpe
- Bodenbelag: Fliesen, Fertigparkett
- Badausstattung: Dusche
-
- Primärenergieträger: Luft-Wärmepumpe
- Energieausweis-Jahrgang: nicht erforderlich
-
Diese 5 modernen Neubau-Eigentumswohnungen entstehen in der Alten Südstadt, Hedwigstraße 10 im direkten Kernstadtbereich von Paderborn. Hier herrscht eine angenehme Atmosphäre, die perfekt für alle geeignet ist, die dem Trubel der Stadt entfliehen möchten.
In der Nähe sind diverse Einkaufsmöglichkeiten, Schulen und Kindergärten vorhanden. Die Verkehrsanbindung ist optimal: Die B64 und A33 sind schnell erreichbar. ÖPNV-Anbindungen bestehen durch mehrere Buslinien, darunter die Linien 1, 2, 4 und 5, die regelmäßig in die Innenstadt und zu umliegenden Stadtteilen fahren. Zudem bietet die Umgebung zahlreiche Freizeitmöglichkeiten, darunter Parks und Sporteinrichtungen, was die Lage besonders attraktiv macht. -
- Kaufpreis: 369.900 €
- Außenstellplatzkaufpreis: 7.500 €






