Offene Rohbaubesichtigung am 26.10. von 13-14 Uhr! Ausbaushaus!

-
Diese vier Neubau-Doppelhaushälften bieten auf 3 Wohnetagen großzügige 160 m² Wohnfläche, modernen Wohnkomfort und eine durchdachte Raumaufteilung die keine Wünsche offen lässt. Gelegen in einer ruhigen und dennoch zentralen Lage, bieten diese Häuser alles, was das Herz begehrt von einer nachhaltigen Bauweise bis hin zu einer hochwertigen Ausstattung.
Im Erdgeschoss empfängt Sie ein offener, lichtdurchfluteter Wohn-/ Essbereich mit offener Küche und direktem Zugang zur Terrasse. Der angrenzende Süd-Garten lädt zu entspannten Stunden im Freien ein. Abgerundet wird das Erdgeschoss durch ein praktisches Gäste-WC sowie einen Technikraum, in dem die Hausanschlüsse untergebracht sind.
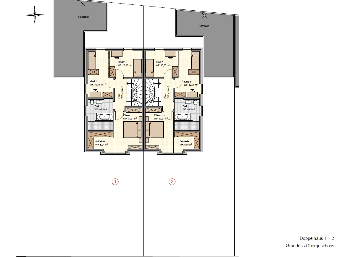
Im Obergeschoss befindet sich das großzügige Badezimmer mit Dusche und Badewanne, das Elternschlafzimmer bietet durch den separaten Ankleidebereich viel Platz und Stauraum. Zusätzlich gibt es zwei weitere Zimmer, die sich für unterschiedliche Nutzungen anbieten und genügend Raum für Ihre Familie bieten.
Das Dachgeschoss ist besonders vielseitig und bietet neben einem großen Wohnraumraum ein Arbeitszimmer, welches den Zugang zur Dach-Loggia ermöglicht und sich ideal für entspannte Stunden oder kreative Tätigkeiten eignet. Ein zusätzliches Badezimmer mit Dusche und Dachflächenfenster sorgt für viel Licht. Ein Abstellraum rundet das Dachgeschoss ab und bietet zusätzlichen Stauraum.
Ein Carport mit Abstellraum kann gegen Mehrpreis erstellt werden und rundet das Angebot dieser attraktiven Neubauten ab.
Diese Doppelhaushälften bieten die perfekte Kombination aus modernem Design, nachhaltiger Bauweise und durchdachter Raumaufteilung. -
Flächen
- Wohnfläche: 160,15 m²
- Grundstücksfläche: 280 m²
- Wohneinheiten: 1
- Zimmer insgesamt: 6
- Schlafzimmer: 5
- Badezimmer: 2
- Separate WCs: 1
- Etagen: 2
- Stellplätze: 2
- Stellplatzart: Carport
- Carport-Stellplätze: 1
- Terrassen: 1
- Loggien: 1
Zustand & Erschließung
- Baujahr: 2024
- Zustand: Erstbezug
- Alter: Neubau
- Energietyp: Neubaustandard
Sonstiges
Preisaufstellung:
z.B.: Haus 4:
Grundstück: 285m²
Wohnfläche: 161,52
Preis: 415.000,- EUR
Es fällt keine Maklergebühr an, Sie kaufen direkt vom Ersteller!
Das Angebot gefällt Ihnen?
Bitte kontaktieren Sie uns über dieses Immobilienportal, wir senden Ihnen gerne ein Exposé.
Haben Sie bereits eine Finanzierungsbestätigung Ihrer Bank?
Auch hier helfen wir Ihnen gerne weiter und vermitteln Ihnen ein Beratungsgespräch mit einem Bank unabhängigen Finanzierungsexperten, unverbindlich und kostenlos.
Die Finanzierung ist ein entscheidender Teil des Kaufprozesses und sollte im Idealfall schon vor der ersten Besichtigung geklärt sein,
damit Ihr Immobilientraum auch in Erfüllung gehen kann.
Sie erreichen mich unter der Tel.Nr.: 05251 – 20 778 10 und 0171 21 22 320.
Ihr Georg Knaup
weitere Angebote unter www.Immopartner-PB.de
Sonstiges:
Alle Angaben ohne Gewähr!
Der Makler haftet nicht für Tipp- oder Datenübermittlungsfehler.
Vertragsgrundlage ist ausschließlich der Notarielle Kaufvertrag. -
Ausbauhaus in super Lage, direkt am Kurwald
– Loggia im Dachgeschoss
– Fenster mit elektrischen Rollläden
– großzügige Grundrisse
– durchdachte Raumaufteilung – ideal für Familien
– es kann auf Wunsch zusätzlich ein Carport mit Abstellraum errichtet werden.
- Art der Ausstattung: Standard
- Heizungsart: Zentralheizung
- Befeuerung: Luft-Wärmepumpe
- Bodenbelag: Fliesen, Estrich
- Badausstattung: Dusche, Badewanne, Fenster
-
- Primärenergieträger: Luft-Wärmepumpe
- Energieausweis-Jahrgang: nicht erforderlich
-
Diese Neubau-Doppelhaushälften befinden sich in Bad Lippspringe / Schlangen, Zum Kurwald / Ecke Paderborner Straße einer ruhigen und familienfreundlichen Wohnlage.
Schlangen hat rund 9.500 Einwohner und liegt am Rande des Teutoburger Waldes, einer Region mit hohem Wohn- und Erholungswert. In unmittelbarer Umgebung gibt es mehrere Kindergärten sowie eine Grundschule, sowie weiterführende Schulen.
Schlangen ist durch öffentliche Verkehrsmittel optimal an Bad Lippspringe und Paderborn angebunden, die Green Line fährt alle 15 Minuten.Die Lage bietet somit die perfekte Kombination aus ruhigem Wohnen im Grünen und einer familienfreundlichen Infrastruktur mit kurzen Wegen zu Bildungseinrichtungen, Einkaufsmöglichkeiten und Freizeitangeboten. Hier genießen Familien sowohl Naturverbundenheit als auch eine hervorragende Anbindung für den Alltag.
Die Stadt Bad Lippspringe mit etwa 16.000 Einwohnern grenzt direkt an diesen Bereich.
Die Innenstadt von Paderborn ist in nur 15 Minuten mit dem Auto erreichbar. Über die nahegelegene B1 sind auch weitere Städte schnell zu erreichen.
-
- Kaufpreis: 415.000 €
-
-
Grundrisse
